

雙支點機架,不宜于選用無支點、單支點機架時,應選用雙支點機架。但選用的雙支點機架下支點軸承結構采用帶緊定套的錐孔調心滾子軸承便利于安裝維修,且攪拌軸與減速機之間的聯接 選用HL型彈性柱銷聯軸器。

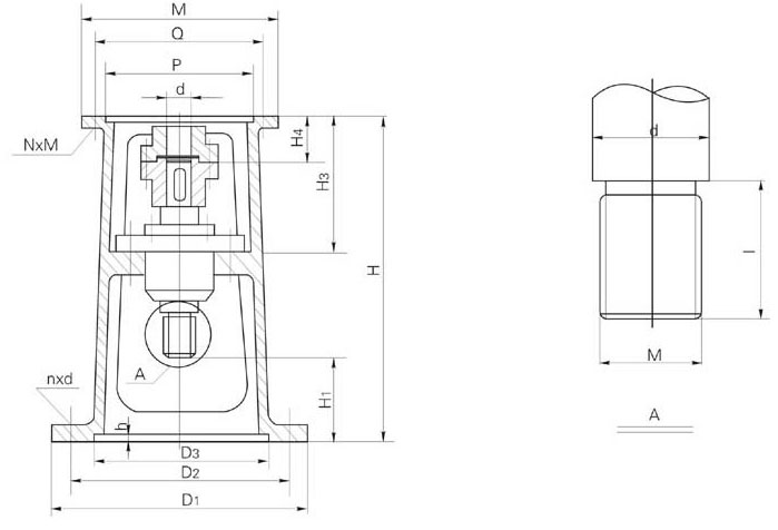
2、HG65-251-69標單支點機架主要參數及尺寸
| 機架 型號 |
反應罐 (立升) |
減速機 BLD |
反應罐連接處 | H | H1 | H3 | H4 | 攪拌軸連接處 | 減速機連接處 | ||||||||||
| D1 | D2 | D3 | n×d | h | M | I | d | P | N×M | D | Q | M | |||||||
| TB1 | 50 100 |
B1 | 260 | 220 | 190 | 3×14 | 7 | 514 | 110 | 185 | 75 | 33×2 | 50 | 40 | 170 | 6×10 | 35 | 200 | 230 |
| TB2 | 200 | B1 | 305 | 280 | 220 | 3×14 | 7 | 514 | 140 | 185 | 80 | 42×3 | 60 | 50 | 170 | 6×10 | 35 | 200 | 230 |
| TB3 | 300 | B2 | 335 | 300 | 250 | 3×18 | 7 | 530 | 190 | 210 | 94 | 42×3 | 70 | 50 | 200 | 6×10 | 45 | 230 | 260 |
| TB3 | 500 | B2 | 335 | 300 | 250 | 3×18 | 7 | 530 | 190 | 210 | 94 | 48×3 | 70 | 60 | 200 | 6×10 | 45 | 230 | 260 |
| TB4 | 1000 | B3 | 442 | 400 | 345 | 4×26 | 7 | 675 | 200 | 250 | 100 | 60×4 | 80 | 70 | 270 | 6×12 | 55 | 310 | 340 |
| TB4 | 1500 | B3 | 442 | 400 | 345 | 4×26 | 7 | 675 | 200 | 250 | 100 | 65×4 | 85 | 76 | 270 | 6×12 | 55 | 310 | 340 |
| TB4 | 2000 | B3 | 442 | 400 | 345 | 4×26 | 7 | 675 | 200 | 250 | 100 | 78×4 | 90 | 89 | 270 | 6×12 | 55 | 310 | 340 |
| TB5 | 3000 | B4 | 460 | 400 | 345 | 4×26 | 7 | 720 | 200 | 250 | 120 | 78×4 | 90 | 89 | 320 | 8×14 | 70 | 360 | 400 |
| TB5 | 5000 | B4 | 548 | 500 | 435 | 4×30 | 7 | 736 | 200 | 250 | 120 | 78×4 | 100 | 95 | 320 | 8×14 | 70 | 360 | 400 |