
|
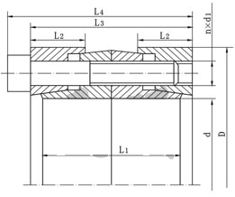
基 本 尺 寸
|
額定負荷
|
內六角螺釘
|
脹套與軸
結合面上 的 壓 力 Pr N/mm2 |
脹套與輪
轂結合面 上的壓力 Pr1 N/mm2 |
重量
kg |
||||||||
|
d
|
D
|
L1
|
L2
|
L3
|
L4
|
軸向力Ft
KN |
轉矩Mt
KN.m |
d1
|
n
|
MA
N.M |
|||
|
mm
|
|||||||||||||
|
30
35 40 45 50 55 60 65 70 75 80 85 90 95 100 110 120 130 140 150 160 170 180 190 200 220 240 260 280 300 320 340 360 380 400 420 440 460 480 500 520 540 560 580 600 |
55
60 65 75 80 85 90 95 110 115 120 125 130 135 145 155 165 180 190 200 210 225 235 250 260 285 305 325 355 375 405 425 455 475 495 515 545 565 585 605 630 650 670 670 710 |
40
40 40 48 48 48 48 48 58 58 58 58 58 58 66 66 66 76 76 76 76 86 86 102 102 110 110 110 130 130 154 154 178 178 178 178 202 202 202 202 202 202 202 202 202 |
17
17 17 20 20 20 20 20 24 24 24 24 24 24 28 28 28 33 33 33 33 38 38 46 46 50 50 50 60 60 72 72 84 84 84 84 96 96 96 96 96 96 96 96 96 |
46
46 46 56 56 56 56 56 68 68 68 68 68 68 76 76 76 86 86 86 86 98 98 114 114 122 122 122 146 146 170 170 198 198 198 198 226 226 226 226 226 226 226 226 226 |
52
52 52 64 64 64 64 64 78 78 78 78 78 78 88 88 88 98 98 98 98 112 112 126 126 138 138 138 164 164 190 190 220 220 220 220 250 250 250 250 250 250 250 250 250 |
0.9
1.25 1.5 2.5 3 3.8 4.3 5.3 7.6 8.2 8.7 10.4 12.3 13.0 15.0 18.6 22.5 29.5 31.5 39.4 45 52.5 64.9 78.3 92.7 126 137.5 167.6 217 258.5 357.8 380 501 555 584 657 795 831 868 985 1024 1063 1181 1224 1266 |
60
71 75 112 120 138 143 162 219 219 219 240 274 274 301 338 376 451 451 526 563 619 722 825 928 1146 1146 1289 1552 1724 2236 2236 2784 2923 2923 3132 3617 3617 3617 3940 3940 3940 4219 4219 4219 |
M6
M6 M6 M8 M8 M8 M8 M8 M10 M10 M10 M10 M10 M10 M12 M12 M12 M12 M12 M12 M12 M14 M14 M14 M14 M16 M16 M16 M18 M18 M20 M20 M22 M22 M22 M22 M24 M24 M24 M24 M4 M24 M24 M24 M24 |
6
7 8 6 7 8 8 9 8 8 8 9 10 10 8 9 10 12 12 14 15 12 14 16 18 16 16 18 18 20 20 20 20 21 21 24 24 24 24 28 28 28 30 30 30 |
17
17 17 41 41 41 41 41 83 83 83 83 83 83 145 145 145 145 145 145 145 230 230 230 230 355 355 355 485 485 690 690 930 930 930 930 1200 1200 1200 1200 1200 1200 1200 1200 1200 |
132
135 124 136 132 138 127 132 143 134 125 133 139 132 121 123 126 121 112 122 123 112 124 113 121 126 115 120 113 117 120 113 115 115 109 111 108 103 99 104 100 96 100 96 92 |
85
93 90 98 100 108 102 108 110 105 101 109 116 112 98 103 108 101 95 106 108 96 107 95 103 107 100 105 97 102 102 97 97 97 93 96 92 88 85 91 88 84 88 84 83 |
0.5
0.6 0.7 1.1 1.2 1.3 1.4 1.5 2.6 2.8 2.9 3.1 3.2 3.3 4.5 4.9 5.3 7.3 7.8 8.2 8.7 11.6 12.2 16.7 17.4 22.3 24.1 25.8 38.2 40.6 58.6 61.8 85.0 87.2 93.4 97.5 128.9 134.1 1393 144.5 157.6 163.1 168.6 174.0 179.5 |